Sunreef

2018 Sunreef Supreme P68

"Rock Star 2.0"

2018Supreme P68
Pre-OwnedPower
$3,850,000 USD
$5,260,505 CAD
Pompano Beach, Florida, United States
68'Length
2018Year
34' 5"Beam
3Cabins
DieselFuel

Key Specifications

Length68' (68' 0" LOA)
Beam34' 5"
Draft6' 0"
Year2018
CategoryMotor Yachts
TypePower
Hull MaterialFiberglass
Fuel TypeDiesel
Cruise Speed15 Knots
Max Speed25 Knots

Weight & Displacement

Displacement116,000 lbs

Accommodation

Cabins3
Sleeps6
Heads3

Tank Capacities

Fuel1,780 gal
Fresh Water264.17 gal
Holding48 gal

Highlights & Features

This Sunreef 68 Supreme Power Catamaran has the entire Starboard hull dedicated to the Owner’s Suite. The Port Hull houses the VIP Suite, Galley and Crew Quarters for 4. She is powered by Volvo D13 Diesels and IPS1050 Pod drives.

Dive Compressor

About This Yacht

UPDATE as of MAY 21th, 2023 -- 2nd MAJOR PRICE REDUCTION $150,000!!

UPDATE as of MARCH 24th, 2023 -- MAJOR PRICE REDUCTION $500,000!!

UPDATE as of MARCH 8th, 2023

THIS VESSEL IS NOW AVAILABLE FOR SALE & LOCATED IN MIAMI, FL

However she will be DEPARTING the US Waters SOON!!

*Not for Sale to US Citizens While in US Waters

Sunreef SUPREME 68. It has more the look of a penthouse suite in an ultra-modern skyscraper from the new world than a yacht designed to sail around it. This Luxury Power Catamaran which is only available to a happy few is certainly worthy of investigation.

The Supreme 68, will have total living space of nearly 3,230 square feet. That’s not a typo. And remember, it’s a 68-foot yacht. That’s almost as much total space on board the new Sunreef as there is indoor floor space aboard the 263-foot CRN flagship Chopi Chopi (whose superyacht-size outdoor space adds another 2,625 square feet for a far bigger total).

The Polish yard had already made its mark on the yachting world, when in 2003 they introduced a range of semi-custom 70 foot-plus sailing and power catamarans. Their production costs and operating techniques have led to greater accessibility to the world of elitist yachting. There are big flybridges, twin decks, crew quarters, and personalized layouts and décor reminiscent of the biggest and most expensive superyachts. Today, Sunreef is raising the bar again, offering proper floating homes with living and interior design characteristics beyond the norm. Francis Lapp, the yard’s founder, believes his vision of a boat should be that of his clients, and in order to achieve this, he imagines himself in the place of the potential owner. He envisages every possible requirement that the modern luxury yacht owner could desire. These requirements themselves are created by the spread of the big yacht market and the unmistakable trend toward more urban comfort and less in the way of boating constraints. In short, a lifestyle.


DH Yacht Sales is pleased to assist you in the purchase of this vessel. This boat is centrally listed by JFA Yacht & Ship. It is offered as a convenience by this broker/dealer to its clients and is not intended to convey direct representation of a particular vessel

Propulsion

Engine 1Volvo Penta D13C2-A MP
TypeOtherFuelDieselPower800 HPPower597 KW
Engine 2Volvo Penta D13C2-A MP
TypeOtherFuelDieselPower800 HPPower597 KW

Generators

Generator 1ONAN #1 19 KW
Power19.0 KW
Generator 2ONAN #2 19 KW
Power19.0 KW

Registration

HIN/IMOPL-SRY68P08H818

Full Details

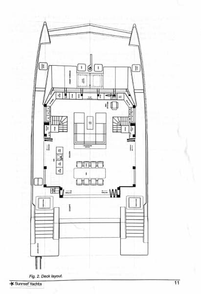
Vessel Layout

Special Layout - Galley down with Large Master cabin + VIP cabin + Guest Cabin + Completely Independent Crew cabin + Huge open Salon

Standard

Hulls, deck, flybridge and all structural bulkheads constructed of E-glass sandwich laminate with reinforcement by infusion process.

Hull outer osmosis protection in vinylester resin

Aft garage with manual system to launch dinghy, door of the garage can be used as platform while open


The Supreme 68, will have total living space of nearly 3,230 square feet. That’s not a typo. And remember, it’s a 68-foot yacht. That’s almost as much total space on board the new Sunreef as there is indoor floor space aboard the 263-foot CRN flagship Chopi Chopi (whose superyacht-size outdoor space adds another 2,625 square feet for a far bigger total).

Main Salon

Phillips 70” Widescreen LED TV

SONOS Surround Sound System

Zodor Drink Refrigerator at Helm

Custom Bar with Blacklight Quartz Stone Face Copper Sink and Faucet

Vitrifrico Refrigerator in Bar 32 Bottle Wine Cooler Electric Recessed Blinds Large Sectional Seating Area Large Dining Table

Large Lounge Seat

Modern Finishes Throughout

Convenient Open Layout with Access to Lower Helm Folding Doors to Open the Entire Salon Back Wall

Galley

Refrigerator/Freezer

Electric Stove

Electric Oven

Microwave

Cooking Hood

Large Counter Tops with Plenty of Working Space Ample Storage

Accommodations

Master Stateroom:

Large Master Stateroom with spacious head

King Size bed

Walk in closet with independent sections for clothes Storage throughout the main section of stateroom Seating area opposite of bed

Private head with large walk in shower

Rainforest and secondary shower head

Guest Staterooms:

Large VIP Guest Stateroom

Queen Size Berth

Window Length Dresser

Full size head with walk-in shower Rainforest head with secondary shower head

3rd Guest Stateroom

Twin Berths

Independent Head

Closet and Storage Cabinets Quick deck access

Independent Crew Cabin

Over Under Bunks Independent Head

Access Through On Deck Hatch

Deck

Port lights with Large side windows

Stainless Steel Swim ladder

Navigation lights with LED lamps

Exterior lighting (LEDs, deck search light, lights on flybridge) Deck lights

Gigantic Dive/Swim Platform When Garage is Open Hardtop on Flybridge with six overhead lights Shower head on the cockpit ceiling with mixing valve

Flybridge Cushion Set

Flybridge Bar with Sink

Forward Sunpad

Stainless Steel Barbeque

Teak covered flybridge floor

Besenzoni Passerelle for Easy Boarding

Hot and Cold Water Washdown on Swim Platform Custom Dolphin Seats On Bow Rail

Electronics and Navigation

Electrical

AC-230V: Main switchboard, 1 Victron Quattro 24V/5000W/120A, shore power inlet (32A 230V 50Hz inlet), shore power cord (1x 20m 3-cond), one 230V socket per cabin, two 230Vsocket in salon, dining area and kitchen

DC-24V: Main switchboard, house batteries (24V/800Ah), 2 starting batteries, DC distribution, wiring

Upgrade base generator to ONAN 19KVA

Additional generator ONAN 19 KVA

50/60Hz Shore connection kit ASEA frequency converter

Additional Inverter 120V/60Hz/3000W + 10 sockets

Additional upgrade of electric kit (AC-230V 50Hz 1PH: main switchboard with panel extension (manual change over shore-generators), 2 chargers (24V/100A), 2x shore power inlet 63A, inverter (220V/ 50Hz/ 5000W), 3x socket (230V) in cabins, 4 sockets in saloon, 4 in dining area and 4 in galley

2 Alternators 24V, 75A each

Lights

Interior lights with LED lamps

Navigation lights with LED lamps

Exterior lighting (LEDs, deck search light, lights on flybridge)

Deck lights

Lights in the engine rooms

Underwater lights LED

Dometic system for lights, controls, and D/C system, including dimmers for ceiling lights Control: - Lighting with dimming - Navigation lights - Control of valves and pumps of black water Measurement: - Tank level monitoring with alarm: fresh water, black water, fuel - Battery and Victron charger monitoring with alarm: starter/ main battery bank/ emergency batteries (if installed) - Measurement of temperature in the engine room

Engine and Mechanical

Twin Volvo 1050IPS 800HP Engines

Twin 19KW Onan/Cummins Generators

Upgraded Frigomar Air Conditioning to 186 000 BTU/H Fireboy Automatic Fire System

24V Windlass

Engine Room has Heat and Sound Dampening Installed

Garage

Model 400 Williams Jet Propelled Dinghy Dinghy Launching System

Weight-Lifting Equipment

Electric Dive Compressor

Additional

Model 400 Williams Jet Propelled Dinghy Dinghy Launching System

Weight-Lifting Equipment

Electric Dive Compressor

Mechanical Disclaimer

Engine and generator hours are as of the date of the original listing and are a representation of what the listing broker is told by the owner and/or actual reading of the engine hour meters. The broker cannot guarantee the true hours. It is the responsibility of the purchaser and/or his agent to verify engine hours, warranties implied or otherwise and major overhauls as well as all other representations noted on the listing brochure.

Disclaimer

The company offers the details of this vessel in good faith but cannot guarantee or warrant the accuracy of this information nor warrant the condition of the vessel. A buyer should instruct his agents, or his surveyors, to investigate such details as the buyer desires validated. This vessel is offered subject to prior sale, price change or withdrawal without notice.

Exclusions

Owner’s personal belongings.

OVERVIEW of a SUNREEF SUPREME 68

Indeed, she is all about height–it’s eight steps from the swim platform to the main deck and another 12 to the 700-square-foot flybridge.


In between, eight guests can lounge in the cockpit, on the forward sunpads separated by an integrated jetted tub, or in the saloon with floor-to-ceiling glass accordion doors to port, starboard and aft. The galley spans the beam near the forward windows or can angle into the open floor plan.


The 68 Supreme also has an envy-inviting garage that will hold a 16’ tender, a hoist, two PWC’s, scuba tanks, and plentiful gear and water-toys. When the hydraulic transom is lowered, the garage is revealed and the transom forms a teak beach—which is really more like an entire beach club.


The helm station is on the flybridge and is protected by a composite hard-top. The single console is to starboard, just ahead of the very large U-shaped lounge and the Destroyer wheel. It’s the nerve center that commands all systems aboard.


The profile is all about angles. The hard-top has 90-degree corners and angled skylights, the transoms are squared-off, and even the hull windows are rectangular. There’s hardly a soft curve anywhere, which is a departure from recent swoopy designs and a bit refreshing. It also looks quite unconventional.


The Supreme 68, will have total living space of nearly 3,230 square feet. That’s not a typo. And remember, it’s a 68-foot yacht. That’s almost as much total space on board the new Sunreef as there is indoor floor space aboard the 263-foot CRN flagship Chopi Chopi (whose superyacht-size outdoor space adds another 2,625 square feet for a far bigger total).

Listing MLS by Yachtr.com

Interested in This Yacht?

Our team of experienced yacht brokers is ready to assist you with this exceptional vessel.

Your BrokerDH Yacht Sales
Inquiring About2018 Sunreef Supreme P68
This site is protected by reCAPTCHA and the Google Privacy Policy and Terms of Service apply.